Стеновые МДФ панели: характеристики, достоинства и недостатки
Древесноволокнистая плита (Medium Density Fiberdoard), широко применяемая в отделке помещений, имеет одноименное название на российском рынке: стеновая панель МДФ. Основное назначение МДФ — отделка офисов, магазинов, балконов и прихожих жилых помещений. Из них получаются хорошие экраны для отопительных приборов и подоконники.
Классификация панелей проводится по двум признакам. Первый признак – по оформлению лицевой стороны:
- МДФ с нанесением узора полимерной пленкой или шпоном;
- Рельефные панели, покрытые лаком.
Второй признак – по геометрической конфигурации:
- Наборные планки, имеющие реечную форму;
- Квадратные панели, формата плитки;
- Листовые панели большого размера.
Принцип действия пиролизных твердотопливных котлов
Как уже отмечалось, одним из недостатков агрегатов традиционного исполнения является их малый КПД. Проблема может быть устранена при установке пиролизного котла, в котором реализуется принцип так называемого двойного сгорания. Он заключается в том, что при некотором (искусственно создаваемом) недостатке воздуха, требующегося для горения топлива, конечным продуктом сгорания является не диоксид углерода СО2, а угарный газ СО, сам являющийся горючим газом.
В совокупности с паром, который всегда выделяется перед началом устойчивого горения топлива, он образует генераторный газ, который, во-первых, поддерживает процесс сгорания, во-вторых, повышает температуру в топочной камере, и, в третьих, увеличивает продолжительность сгорания порции топлива. Пиролизные котлы разработаны, главным образом, под дрова и пеллеты, поскольку из всех видов твёрдого топлива именно они обладают наименьшей теплотворной способностью.
Конструкция котла на твёрдом топливе, реализующего принцип пиролиза, представлена на рис. 2. Из него следует, что данный агрегат имеет в своём составе две рабочих камеры: в верхнюю производится загрузка топлива, в нижней происходит сам процесс пиролиза.
Он состоит из следующих стадий:
- Предварительного подсушивания дров подогретым воздухом, принудительно подаваемым в камеру вентилятором;
- Дегазации дров, с выделением генераторного газа;
- Последующим сжиганием генераторного газа в камере сгорания;
- Нагревом теплоносителя, заключённого в зазоре между внешней и внутренней стенками.
Необходимо отметить, что длительность сгорания в пиролизном котле значительно увеличивается. Связано это с неодинаковостью по времени происходящих реакций дегазации и сгорания: вначале, при температурах, превышающих 2500С, происходит только дегазация летучих компонентов: смол, масел и т.п., далее – при достижении температуры более 600…6500С (зависит от вида древесины) начинается процесс превращения твёрдого углерода в древесный уголь, и затем – уже при температурах до 8500С – сжигание последнего. В результате достигается более полное сгорание топлива и увеличиваются интервалы времени между его загрузкой.
Рис. 3 Котёл длительного горения
При всей своей экономичности пиролизные котлы обладают двумя особенностями: для привода вентилятора они требуют электрической энергии (а потому автономными считаться уже не могут), а также нуждаются в более серьёзных приборах автоматики, поскольку угарный газ СО чрезвычайно ядовит. С этим связано и более тщательное обустройство дымохода.
Правила безопасности
Главное правило — не закрывать вьюшку печи раньше времени. Котёл Кузнецова работает по принципу газовой вьюшки — холодные газы с горячими не смешиваются, поэтому печка остывает не сильно. Если же закрыть вьюшку раньше времени, в помещение может попасть угарный газ, вызывающий отравление
Котёл особенно боится перетапливания — кипящий теплоноситель разорвёт теплообменник. Поэтому при сильных морозах, если мощности недостаточно, прибегайте к дополнительному обогреву помещения электрообогревателями.
При установке в систему отопления водяного насоса, повышается эффективность работы.

При топке некоторые части печи сильно нагреваются. Не подпускайте маленьких детей к дверцам, не поручайте подросткам обогрев дома.
Во время топки держите дверцу либо закрытой, либо чуть приоткрытой, т. к. вылетевший уголёк может привести к пожару.
Перед печкой организовывается «фартук» из керамической плитки или листа железа.
Сажа удаляется два раза в отопительный сезон. Накопление её в дымоходе может привести к пожару.
Кирпичная печь — отличный вариант отопления дома. Правила безопасного использования просты и понятны на интуитивном уровне.
Установка и монтаж
Module Reference
Чертежи твердотопливных котлов длительного горения

Продолжительную работу устройства с теплообменником на одной партии дров обеспечивает специальная конструкция:
- увеличенная емкость топливной камеры – вмещает в 2 раза больший объем закладки;
- нестандартное направление разжигания – дрова прогорают вертикально вниз.
Огонь охватывает верхний слой топлива. За счет дозированной подачи воздушного потока образуется ровное, несильное пламя. Нижний объем закладки постепенно нагреваются по мере прогорания дров.
Классический
В стандартных чертежах устанавливают тепловой генератор в форме цилиндра. Прямоугольный корпус для классических котлов длительного горения не подходит.
Оборудование работает следующим образом:
- топочную камеру наполняют дровами и разжигают сверху;
- в процессе прогорания топлива посредством телескопической трубы на него опускается груз с отверстием для циркуляции воздуха;
- кислород через дымоход поступает в топку под воздействием естественной тяги или вентилятора;
- теплообменника в классической схеме нет, вода для отопления нагревается напрямую.
Помимо дров для растопки используют торф или кокс.

Фото 1. Классический твердотопливный котел длительного горения с дровами в топочной камере и отсутствием теплообменника.
Пиролизный
В газогенераторных приборах дрова тлеют медленнее. Происходит выделение горючего дыма, который поступает в отдельную зону и вырабатывает дополнительную тепловую энергию. Конструкция включает:
- Загрузочную камеру. В ней происходит процесс пиролизного сжигания топлива.
- Отсек дожига. Здесь сгорает газ.
- Теплообменник. Выполняют в виде «рубашки». Внутри теплообменника нагревается вода для последующего выхода в сеть.
- Устройство подачи воздуха. Обеспечивает поступление первичного (в топку) и вторичного (в камеру дожига) потока.
- Дроссельная заслонка. Для регулировки скорости и объема кислорода на этапе первого розжига топлива.
- Приспособления для управления температурой и мощностью оборудования.
Две камеры разделяет огнестойкое перекрытие с форсункой и отверстиями. От вторичного воздушного потока зависит скорость нагрева воды внутри теплообменника.

Фото 2. Пиролизный котел, оснащенный загрузочной камерой, теплообменником, камеры разделены огнестойким перекрытием.
Шахтный
Устройства, работающие по принципу обычного сжигания топлива, проще пиролизных. Конструкция включает:
- Топку. Эта зона занимает от 50% объема оборудования и чаще имеет прямоугольную форму. Ее высота незначительно меньше длины целой конструкции.
- Люк для загрузки топлива. Его устанавливают сверху или сбоку относительно топки.
- Зольник. Камера, куда естественным путем попадает зола с остатками углей. Ее оборудуют под топкой.
- Колосник. Выполняет функцию разделительной решетки между внутренними секциями котла.
- Дверца. Размеры подбирают с учетом возможности одновременного доступа и к зольной, и к нижней части топочной камеры. Чтобы регулировать объем воздуха, на дверцу устанавливают шибер.
- Секция с теплообменником. В проектах шахтных котлов используют конструкции водяного или жаротрубного типов. В камере теплообменника выполняют отверстие для поступления угарных газов.
- Дымоходная труба из металла или кирпича с заслонкой.
После загрузки и розжига топливо выделяет горючие газы. Через отверстие они поступают в камеру с теплообменником, нагревая последний. Дым отдает энергию и выходит наружу через трубу, а горячая вода поступает в отопительную сеть.

Фото 3. Котел длительного горения шахтного типа с теплообменником, в котором топливо выделяет горючие газы после розжига.
Виды печей со встроенным котлом
Конструкция может быть выполнена из металла или кирпича с разным размещением каменки, с котлом для подогрева воды для мытья, если речь ведется о бане. Размеры не ограничены: выбор параметров определяется с учетом габаритов помещения, строительных материалов здания, а также местного климата.

Следует рассмотреть особенности конструкции двух видов печей с котлами отопления:
- Котел встраивается в дымоход. Такая модель отличается длительным сроком эксплуатации, стенки печки полностью получают тепло из топки, показатели теплоотдачи неизменны. Недостаток: нельзя обогреть большую площадь.
- Котел находится прямо в топке. Можно обогреть большую площадь помещения. Есть возможность использования разных видов теплообменника. Недостатки: металлические части напрямую контактируют с огнем, в результате чего разрушаются. Из-за низкой температуры теплообменника вырабатывается конденсат, из-за чего позже к поверхности прилипает много сажи, вследствие чего понижается КПД.
Как сделать своими руками котел твердотопливный длительного горения: чертежи и схемы
Перед тем, как начать изготовление котла, необходимо определиться с его конструкцией. Ее выбор зависит от назначения агрегата. Если он предназначен для отопления небольшого хозяйственного помещения, гаража или дачного домика, то делать в нем водяной контур не обязательно. Обогрев такого помещения будет происходить непосредственно от поверхности котла, путем конвекции воздушных масс в помещении, как от печи. Для большей эффективности можно устроить принудительное обдувание агрегата воздухом при помощи вентилятора. При наличии системы жидкостного отопления в помещении, необходимо предусмотреть устройство в котле контура в виде змеевика из трубы или другой аналогичной конструкции.

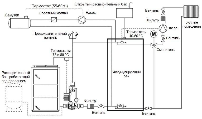
Схема подключения твердотопливного котла к системе отопления
Выбор варианта зависит и от типа твердого топлива, которое нужно будет использовать. Для отопления обычными дровами требуется увеличенный объем топки, а для применения мелких топливных гранул можно устроить специальную емкость, из которой гранулированное топливо подается в котел автоматически. Для изготовления котла твердотопливного длительного горения своими руками, чертеж можно взять и универсальный. Он подойдет для любого вида используемого твердого топлива.

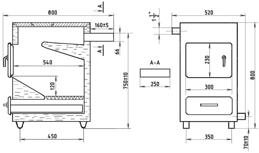
Чертеж твердотопливного котла длительного горения мощностью 25/30/40 кВт
Расскажем пошагово, каким образом и из каких деталей можно сделать котел отопления на твердом топливе длительного горения по предложенной схеме:
- подготовим место, где будет установлен будущий агрегат. Основание, на котором он будет стоять, должно быть ровным, прочным, жестким и огнеупорным. Лучше всего для этого подойдет бетонный фундамент или толстая чугунная либо стальная плита. Стены нужно обить тоже огнеупорным материалом, если они деревянные;
- собираем весь необходимый материал и инструменты: из которых нам понадобиться аппарат для электродуговой сварки, болгарка и рулетка. Из материалов: листовая 4-мм сталь; 300 – мм стальная труба со стенками 3 мм, а также другие трубы 60 и 100 мм диаметром;

Строение и принцип работы твердотопливного котла
- для того, чтобы изготовить котел на твердом топливе длительного горения, нужно из большой 300 – мм трубы вырезать кусок длиной 1 м. Можно и немного меньше, если в этом есть необходимость;
- из стального листа вырезаем дно по диаметру трубы и привариваем его, снабдив ножками из швеллера длиной до 10 см;
- распределитель воздуха выполняем в виде круга из листа стали с диаметром на 20 мм меньшим, чем труба. В нижнюю часть круга приваривается крыльчатка из уголка с размером полки 50 мм. Для этого можно использовать и швеллер аналогичного размера;
- сверху в середину распределителя привариваем 60 – мм трубу, которая должна быть выше котла. В середине диска распределителя прорезаем отверстие по трубе, так, чтобы был сквозной туннель. Он нужен для подачи воздуха. В верхней части трубы врезается заслонка, которая позволит осуществлять регулировку подачи воздуха;

Схематическое изображение устройства котла, работающего на твердом топливе
- в самой нижней части котла изготавливаем небольшую дверку, снабженную задвижкой и петлями, ведущую в зольник для удобства удаления золы. Сверху в котле прорезаем отверстие для дымохода и привариваем в это место 100 – мм трубу. Вначале она идет под небольшим углом вбок и вверх на 40 см, а потом строго вертикально вверх. Проход дымохода через перекрытие помещения должен быть защищен по правилам противопожарной безопасности;
- заканчиваем сооружение котла отопления на твердом топливе длительного горения изготовлением верхней крышки. В ее центре должно быть отверстие для трубы распределителя потока воздуха. Прилегание к стенкам котла должно быть очень плотным, исключающим попадание воздуха.

Чертеж с размерами для создания твердотопливного котла своими руками

Котел длительного горения — вид в разрезе
Правила, которые нужно знать при возведении дымохода
Схема устройства кирпичного дымохода.
Конструкция для твердотопливных котлов изготавливается вместе со стенками частного дома. Данные элементы сооружаются по единому принципу, при этом не имеет значения, будут каналы использоваться в качестве вентиляционных или дымовых. Под дымоход обязательно понадобится построить основание. Устройство основания можно выполнить из кирпича или бетона.
Во всех случаях подготавливается проект основания. В процессе проектирования нужно учитывать, что его высота должна составлять минимум 30 см, а ширина должна быть такой, чтобы конструкция основания выходила за границу дымоходного устройства на 15 см или более. Если дымоход изготавливается в качестве элемента внешней стенки, то нужно знать, что нижняя часть основания дымохода должна размещаться на нижнем уровне основания стенки.
Особое внимание в процессе сооружения дымоходных конструкций надо обратить на качество герметичности. Чтобы сделать долговечный кирпичный дымоход, понадобится соблюдать правила. Укладка материала должна производиться так, чтобы швы перекрывались элементами следующего ряда
В большинстве случаев используется такая же смесь, как и для сооружения несущих стенок конструкции
Укладка материала должна производиться так, чтобы швы перекрывались элементами следующего ряда. В большинстве случаев используется такая же смесь, как и для сооружения несущих стенок конструкции.
В процессе изготовления дымохода для твердотопливного котла надо учитывать то, что его внутреннее основание должно быть гладким.
Следовательно, при выполнении строительных работ нужно использовать шаблон. Стены между элементами должны быть толщиной минимум в полкирпича. Для элементов вентиляции толщина перегородки должна быть в 2 раза меньше.
В конце понадобится сделать оголовок. Крайние части элемента должны выступать за пределы конструкции на 10 см или более. Выходы вентиляционных каналов надо создавать под оголовком, в большинстве случаев используется 2 стенки, которые размещаются одна напротив другой. Данный метод размещения позволит предотвратить задувание воздуха.
Правила безопасности
Используя печи дровяного отопления, всегда соблюдайте правила техники безопасности
Никогда не оставляйте печи длительного горения в течении долгого времени без контроля, не забывайте вовремя отчищать зольную камеру и подкладывать дрова в топку
Уделяйте внимание задвижкам канала дымохода. держите их в открытом положении, пока не начнете разжигать печь
Используйте только в холодное время года, ее использование летом нецелесообразно
Значительное перегревание может привести к поломке, и тогда придется ремонтировать печь
причем серьезно. Высокая температура может послужить причиной разрушения стен печи. Именно поэтому стоит избегать чрезмерно высоких температур и использования агрегата в теплое время года
Значительное перегревание может привести к поломке, и тогда придется ремонтировать печь. причем серьезно. Высокая температура может послужить причиной разрушения стен печи. Именно поэтому стоит избегать чрезмерно высоких температур и использования агрегата в теплое время года.
Разметка
Отделите метр от пола, отметив его со стороны входной металлической двери, стыкующейся к косяку, как показано на фото;
К линии примерьте корпус устройства и нарисуйте отметку снизу. Чтобы все прошло успешно, применяйте рейсмус, разведя его планки на расстояние, соответствующее толщине механизма, который планируете устанавливать;
Нарисуйте перпендикулярно несколько линий, проходящих по центру торца. Рейсмус должен плотно прилегать к дверному торцу, когда будете производить разметку параметров устройства
Помните о расположении скважины;
Очень важно подобрать правильное сверло. Оно должно быть такого размера, чтобы в проделанное отверстие свободно входил шпиндель;
Начинать сверлить нужно согласно отметке с лицевой стороны
Аналогично делается и отверстие под скважину. Делайте все аккуратно, так как малейший недочет может привести к порче металлической двери.
Инструкция по изготовлению
Приступая к производственному процессу, необходим начать с подготовки всего самого необходимого:
- Трубы со следующими диаметрами – 30 см, 5-6 см, 10 см (толщина стенок каждой – не менее 3 мм)
- Стальной лист по толщине более 4 мм
- Болгарка
- Аппарат для сварки
- Ручные инструменты
Располагать котел рекомендуют на выровненной твердой поверхности. Если такая установка будет монтироваться дома в котельной, следует подумать об обустройстве фундамента, несколько слов о котором будет сказано позже.
Приступаем к изготовлению котла:
- Берется подходящая по характеристикам труба и отрезается кусок от 70 до 100 см. Малая длина не позволит загрузить достаточное количество дров, большая – сделает закладку крайне неудобной
- Теперь необходимо соорудить распределитель. Чтобы он свободно двигался, его диаметр делается на 15-25 мм меньше основной трубы
В центре круга требуется просверлить отверстие диаметром 15 мм – через него будет поступать воздух в камеру горения. Чтобы диск плотно не прилегал к паленьям и оставалось пространство для циркуляции воздуха, необходимо приварить ко внутренней его стороне крыльчатку – несколько пластин высотой до 5 см
Труба диаметром 5-6 см приваривается по центру регулятора, при этом ее высота делается на 10-15 см больше котла
Как упоминалось ранее, вверху рекомендуется сделать заслонку, которая позволит регулировать тягу в любой момент, тем самым контролируя процесс тления
Внизу болгаркой вырезается дверца, посредством которой будет удаляться зола
Также в нижней части котла надежно приваривается дно
Вверху необходимо пустить горизонтальную дымоходную трубу диаметром 8-10 см и длиной не более 40 см (именно она пропускается внутри теплообменника)
Завершающий штрих конструкции – крышка для котла, в которой вырезано отверстие под воздухозаборную трубу. Она должна как можно плотнее запирать камеру
Хорошей альтернативой дровам является брикеты отопления — смотрите наш обзор
Дымоход и отражатель
Стенки котла будут постоянно раскаляться и излучать тепловую энергию. Если установка монтируется для отопления небольшого помещения, следует расположить вокруг нее отражатели – они будут распределять поток, увеличивая поступления тепла во внутрь.
Если печь будет располагаться в помещении с постоянным пребыванием людей, следует подумать об их безопасности. Один из вариантов решения вопроса – обложить конструкцию кирпичной кладкой.
Дымоход можно сделать из трубы 20 мм. Горизонтальный прямой участок должен на 5-10 см быть больше диаметра топочной. Выводить его на улицу необходимо с минимальным количеством перегибов – 2 по 45 градусов.
Несколько других особенностей:
- Дымоход рекомендуется делать разборным, чтобы 2-3 раза в сезон его можно было без труда почистить от копоти
- Соединяться участки дымохода должны в направлении, противоположном движению газа
- Все конструкции и предметы, которые подвержены легкому воспламенению, должны быть отнесены на безопасное расстояние
Возводим фундамент
Можно предположить, что печь длительного горения на дровах будет постоянно разогреваться до высоких температур. Простой выровненный пол для не нее является не самым лучшим решением – следует возвести фундамент.
Основание можно выложить из жженого кирпича или бута. Они не раскаливаются под действием повышенных температур. Все те, кто желает сделать более основательный фундамент, могут залить цельную монолитную плиту.
Котел можно также установить на ножки, которые легко варятся из швеллера. Они прячутся от глаз за кирпичной кладкой.
Использование котла
Поступать в котел длительного горения на дровах воздух должен, в отличие от классической печи, в определенном количестве. Чтобы этого достичь, закладку необходимо делать в полном объеме, стараясь не оставлять свободных полостей. Рекомендуется к поленьям добавлять опилки, пеллеты, торф или сгораемый мусор.
Закладывать топливо необходимо по следующей инструкции:
- Снять крышку и удалить регулятор с бака
- Заложить плотно топливо
- Разбрызгать поверху горючую жидкость
- Установить регулятор, накрыть крышкой и открыть заслонку
- Брось в воздушную трубу лучину и когда начнется тления заслонку прикрыть
Подводим итоги
Простой котел длительного горения на дровах готов. У становить такую конструкцию можно в любом неотапливаемом помещении: от небольшого гаража до мастерской. Если все было сделано правильно – сомневаться в эффективности и высоком КПД не придется.
Как сделать новую печь с водяным отоплением
В интернете много чертежей, чтобы выполнить печь отопления своими руками. При отсутствии практического опыта у застройщика, надежнее поручить такую работу профессионалам, которые выполнят ее, учитывая требований пожарной безопасности и правил эксплуатации.

Алгоритм возведения печи со скелетным теплообменником:
- Подготавливают теплообменник по размерам топочной камеры.
- Сооружают кирпичный фундамент для печи, под основу укладывают гидроизолированный рубероид.
- Низ топки и поддувало выкладывают шамотным кирпичом, разделив их чугунной решеткой.
- Устанавливают скелетный теплообменник и выкладывают стену из кирпича с использованием порядовки. Обеспечивают размер топки, чтобы между ними был зазор до 2 см.
- Впереди топки устанавливают дверцу.
- Сзади топочной камеры оставляют канал для дымоотводной системы.
- Сверху топочной камеры может быть установлена чугунная варочная плита.
- Дымоотводной канал выполняют из кирпича или стальной трубы.
- Дают время хорошо просохнуть кладке, затем к патрубкам теплообменника подключают внутридомовую отопительную систему, в которой должны быть грязевик, запорно-регулирующая арматура, воздушники, расширительный бак и радиаторы, соответствующие тепловой нагрузке отапливаемого помещения.
- Напоследок производят опрессовку отопительной системы, пробную топку и проверяют работоспособность нагревательного оборудования.
При возведении печного источника отопления, важно обратить внимание на толщину стенок, которую выполняют из огнестойкого шамотного кирпича. Она зависит от вида топлива, для устройств, работающих на угле, стенки выполняются более широкими
Это ограничение не должно игнорироваться, иначе печи станут очень быстро прогорать, и придется устанавливать новую конструкцию.
Сборка радиаторов
Собирать радиаторы — несложный процесс, потому как полностью повторяет процесс их разборки. Соединяются секции ниппелями, которые имеют левую и правую резьбу с обеих сторон. Таким образом, секции сверху и снизу притянутся плотно одна к другой при прокручивании ниппеля. Когда зазор становится шириной в 2 см, следует намотать асбестовый пропитанный шнур и только потом до конца затягивать ниппели.
Когда вся конструкция собрана, следует дождаться, когда высохнет олифа, а потом проверить стыки на герметичность. то есть подать в радиатор воду под большим давлением. Это обезопасит последующее использование радиатора, и протечек не будет.
Подсоединять трубы обратки и подачи теплоносителя нужно по диагонали радиаторов. Отверстия, которые остались открытыми, нужно закрыть заглушками. Лучше брать дюймовые трубы. С одной из сторон на радиаторе будет правая резьба, так что с подключением — сложностей не будет. С противоположной стороны используйте муфту со сгоном и ниппель.

























































